Haus 185

ab € 391.919,–

Stein für Stein zum Traumhaus

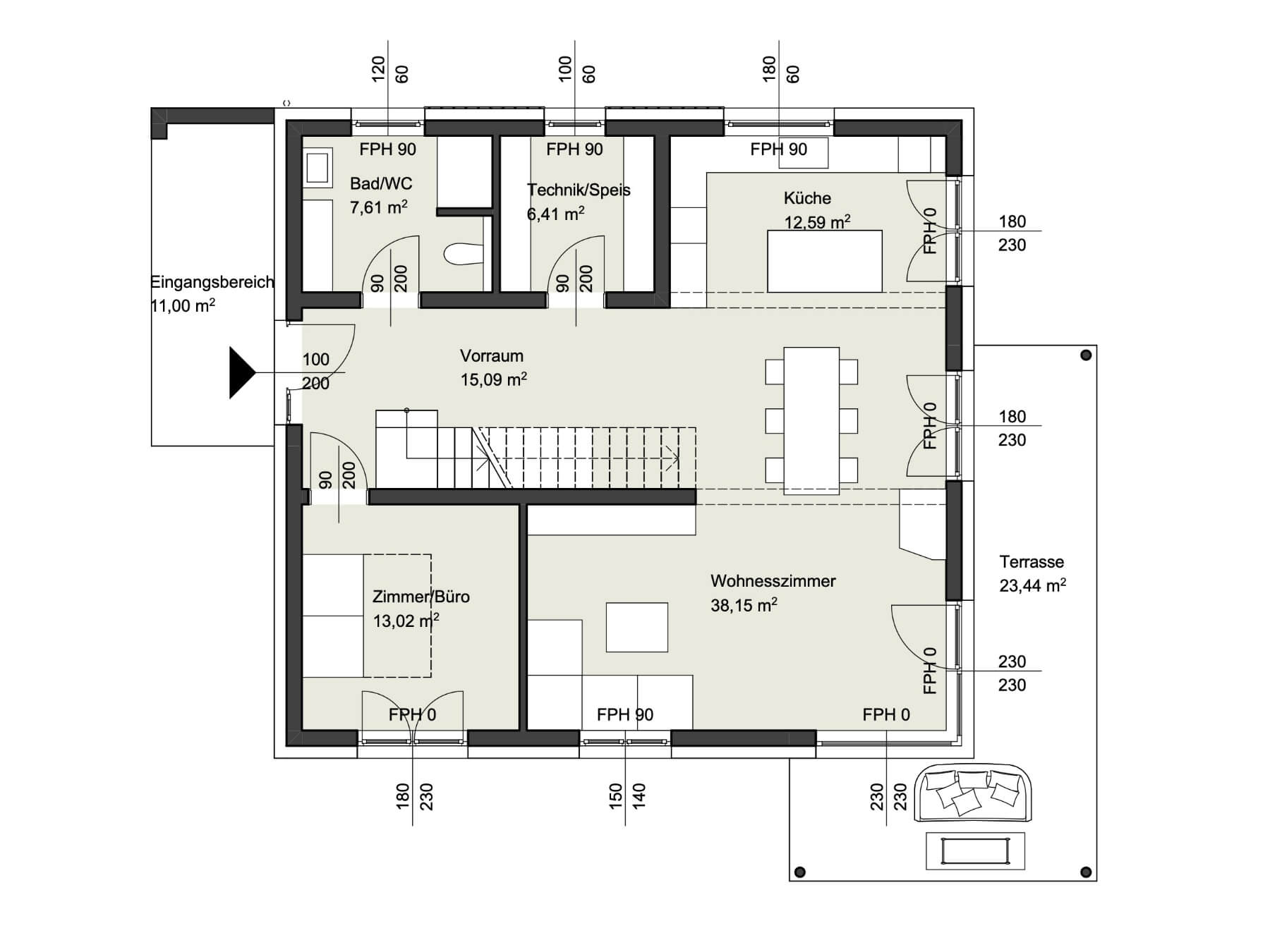
  • Offener-WEK-Bereich ca. 51 m²
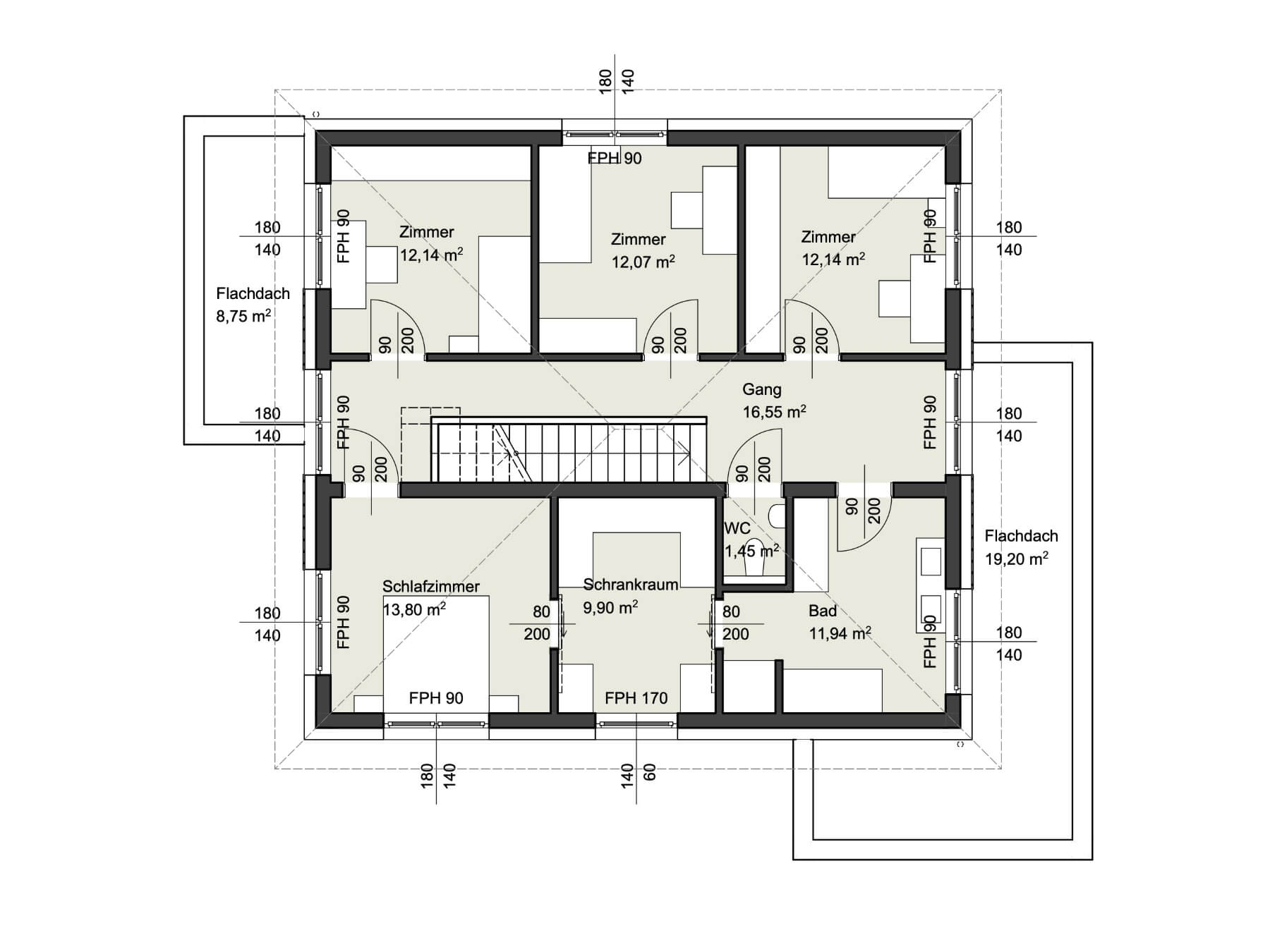
  • 3 KZ ca. 12 m²
  • 1 EZ 14 m² Schrankraum ca. 10m²
  • Schrankraum ist direkt an EZ angeschlossen, extra Durchgang in Bad
  • 1 Bad EG (Dusche) inkl. WC
  • 1 Bad OG (Dusche, Wanne)
  • 1 WC OG
  • 1 Büro EG 13 m²
  • 1 AR/Technik

Haus 185

Das Ziegelmassivhaus WP Haus 185 ist ein moderner Alleskönner und bietet mit seinen 6 Zimmern viel Raum für mehr Familienleben. Der moderne Wohnbereich eignet sich fürs gemütliche Beisammensein mit Familie und Freunden. Im Erdgeschoß bietet das WP Haus 185 darüber hinaus ein Büro bzw. Gästezimmer sowie ein geräumiges Badezimmer. Dank seiner optimierten Planung bietet das WP Haus 185 im Obergeschoß drei Zimmer für genügend Privatsphäre sowie einem Elternschlafzimmer mit separat begehbarem Schrankraum und einem extra Zugang zum großzügigen Familienbadezimmer. Die überdachte Terrasse lädt auch in den warmen Sommermonaten zum gemütliche Verweilen mit der Familie ein.

Grundrisse

Informationen

Wir bauen auf österreichische Qualitätsprodukte

  • Bodenplatte 25 cm
  • Ziegelmassivhaus mit Walmdach
  • Außenwände mit 25 cm starken Ziegel + 20cm VWS
  • Viessmann Luft-Wasser-Wärmepumpe inkl. Fußbodenheizung (oder gleichwertig)
  • Internorm Kunststoff Fenster mit 3-fach Verglasung (oder gleichwertig)
  • Betriebsfertige Elektroinstallation inkl. Schalter und Sicherungsverteiler
  • Hochwertige sanitäre Rohinstallation
  • Vorbereitung für PV-Anlage
  • Fensterbänke
  • Fixpreisgarantie bis Fertigstellung

SONDERAUSSTATTUNG OPTIONAL MÖGLICH
Keller, Kamin, Carport, Terrassenüberdachung, Pool, Garage, Gartenzaun, Terrassenbelag

IHR TRAUMHAUS AUS ZIEGELMASSIV – FÜR UNSERE EXPERTEN KEIN PROBLEM!
Die Wohnperspektive gemeinsam mit ihrem starken Partner ZÖFA sind Ihre professionellen Partner beim Hausbau. Die in bewährter Ziegelmassivbauweise errichteten Niedrigenergiehäuser werden dank des erfahrenen Teams innerhalb kürzester Zeit zum Fixpreis hergestellt.

HWB und fGEE je nach Ausstattung und Kundenwunsch.