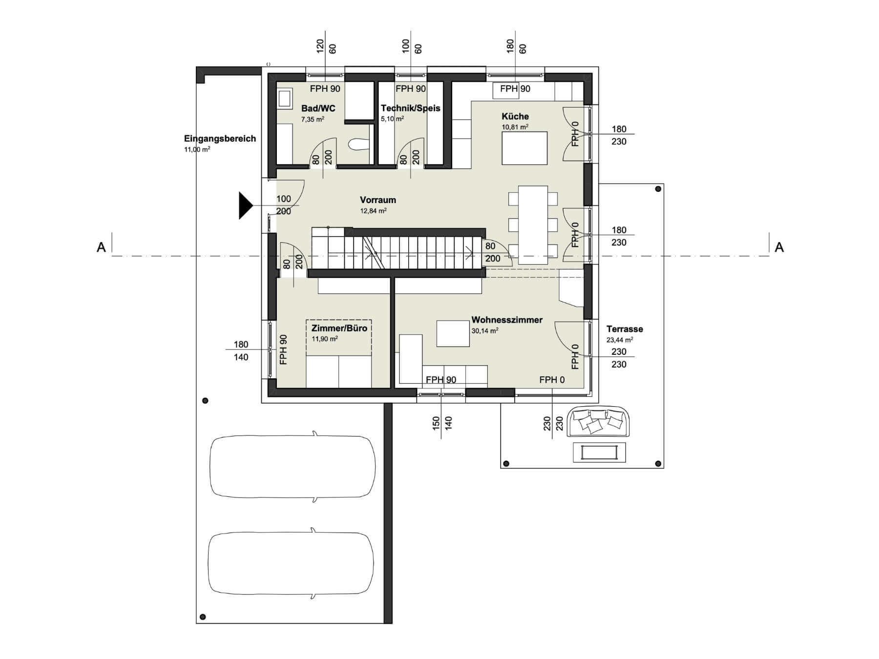
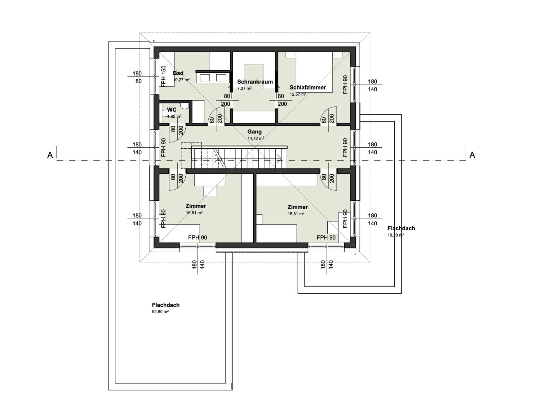
Der quadratische Grundriss des Typenhauses WP 160 vereint flexible Raumgestaltung mit optimierten Kosten und ist das perfekte Ziegelmassivhaus für eine drei- oder vierköpfige Familie. Den schlichten und modernen Grundriss findet man zum einen im offenen Wohn-Ess-Koch-Bereich und zum anderen in der Aufteilung des großen Obergeschosses wieder. Das Erdgeschoß verfügt zusätzlich über einen Raum, welcher als Gästezimmer oder Büro genutzt werden kann. Das Typenhaus WP 160 überzeugt mit seinen zwei Bädern, dem Elternschlafzimmer mit begehbarem Ankleidezimmer und direktem Zugang ins Badezimmer, den zwei Kinderzimmern sowie einer Terrasse für gemütliche Stunden im Freien.

- Offener-WEK-Bereich 41 m²
- WZ abtrennbar
- 2 gr. KZ 16 m²
- 1 EZ separat Schrankraum 7,4 m²
- direkter Zugang Bad über Schrankraum
- 1 Bad EG inkl. WC
- 1 Bad OG
- 1 WC OG
- 1 Büro EG 12 m²
- 1 Technik/Abstellraum
- 1 Abstellraum unter Stiege
Informationen
156 m2 Wohnnutzfläche
79 m² Keller (Kellergrundriss auf Anfrage)
| Flächenaufstellung | ||
| Erdgeschoss: Wohn-/ Esszimmer |
Parkett |
30,14 m2 |
| Küche | Fliesen | 10,81 m2 |
| Zimmer/Büro | Parkett | 11,90 m2 |
| Vorraum | Fliesen | 12,84 m2 |
| Bad/ WC | Fliesen | 7,33 m2 |
| Technik/ Speis | Fliesen | 5,10 m2 |
| Obergeschoss Schlafzimmer |
Parkett |
12,57 m2 |
| Schrankraum | Parkett | 7,37 m2 |
| Zimmer | Parkett | 15,81 m2 |
| Zimmer | Parkett | 15,81 m2 |
| Gang | Parkett | 14,72 m2 |
| Bad | Fliesen | 10,27 m2 |
| WC | Fliesen | 1,35 m2 |
Wir bauen auf österreichische Qualitätsprodukte
- Bodenplatte 25 cm
- Ziegelmassivhaus mit Walmdach
- Außenwände mit 25 cm starken Ziegel + 20cm VWS
- Viessmann Luft-Wasser-Wärmepumpe inkl. Fußbodenheizung (oder gleichwertig)
- Internorm Kunststoff Fenster mit 3-fach Verglasung (oder gleichwertig)
- Betriebsfertige Elektroinstallation inkl. Schalter und Sicherungsverteiler
- Hochwertige sanitäre Rohinstallation
- Vorbereitung für PV-Anlage
- Fensterbänke
- Fixpreisgarantie bis Fertigstellung
SONDERAUSSTATTUNG OPTIONAL MÖGLICH
Keller, Kamin, Carport, Terrassenüberdachung, Pool, Garage, Gartenzaun, Terrassenbelag
IHR TRAUMHAUS AUS ZIEGELMASSIV – FÜR UNSERE EXPERTEN KEIN PROBLEM!
Die Wohnperspektive gemeinsam mit ihrem starken Partner ZÖFA sind Ihre professionellen Partner beim Hausbau. Die in bewährter Ziegelmassivbauweise errichteten Niedrigenergiehäuser werden dank des erfahrenen Teams innerhalb kürzester Zeit zum Fixpreis hergestellt.
HWB und fGEE je nach Ausstattung und Kundenwunsch.




