Haus 144

ab € 358.299,–

Stein für Stein zum Traumhaus

  • Offener-WEK-Bereich 36,2m²
  • inkl. Vorratsraum 3,3
  • 2 gr. KZ ca. 15m²
  • 1 EZ geräumiger Schrankraum 9 m² anbei (abtrennbar)
  • 1 WC EG
  • 1 Bad OG (Wanne, Dusche)
  • 1 WC OG
  • 1 Büro EG
  • 1 Technikraum/Abstellraum
  • 1 AR unter Stiege

Haus 144

Das Ziegelmassivhaus WP Haus 144 ist perfekt durchdacht und modern umgesetzt. Drei Schlafzimmer im Obergeschoß bieten Raum für Privatsphäre, während im Erdgeschoß der Wohn- und Essbereich mit offener Küche zu geselligen Stunden mit der Familie oder Gästen einlädt. Ein zusätzliches Zimmer im Erdgeschoss kann ganz nach Bedarf genutzt werden.

Grundrisse

Informationen

143m2 Wohnnutzfläche
73m2 Keller (Kellergrundriss auf Anfrage)

 

Flächenaufstellung

Erdgeschoss:
Wohnessküche Parkett 36,24m2
Speis Fliesen 3,30m2
Zimmer Parkett 12,36m2
Garderobe Fliesen 5,44m2
Vorraum Fliesen 7,34m2
WC Fliesen 2,05m2
Technik Fliesen 4,90m2
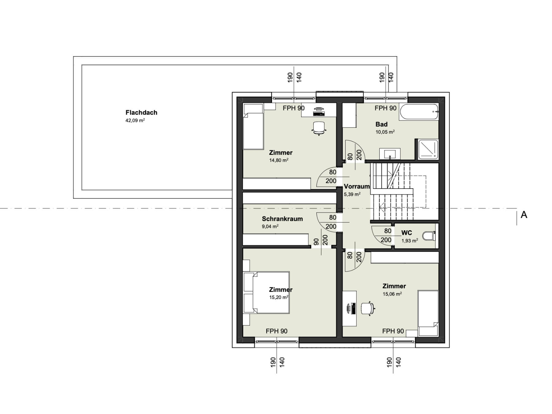
Obergeschoss:
Schlafzimmer
 

Parkett

 

15,20m2

Schrankraum Parkett 9,04m2
Zimmer Parkett 14,80m2
Zimmer Parkett 15,06m2
Vorraum Parkett 5,93m2
Bad Fliesen 10,05m2
WC Fliesen 1,93m2

Wir bauen auf österreichische Qualitätsprodukte

  • Bodenplatte 25 cm
  • Ziegelmassivhaus mit Walmdach
  • Außenwände mit 25 cm starken Ziegel + 20cm VWS
  • Viessmann Luft-Wasser-Wärmepumpe inkl. Fußbodenheizung (oder gleichwertig)
  • Internorm Kunststoff Fenster mit 3-fach Verglasung (oder gleichwertig)
  • Betriebsfertige Elektroinstallation inkl. Schalter und Sicherungsverteiler
  • Hochwertige sanitäre Rohinstallation
  • Vorbereitung für PV-Anlage
  • Fensterbänke
  • Fixpreisgarantie bis Fertigstellung

SONDERAUSSTATTUNG OPTIONAL MÖGLICH
Keller, Kamin, Carport, Terrassenüberdachung, Pool, Garage, Gartenzaun, Terrassenbelag

IHR TRAUMHAUS AUS ZIEGELMASSIV – FÜR UNSERE EXPERTEN KEIN PROBLEM!
Die Wohnperspektive gemeinsam mit ihrem starken Partner ZÖFA sind Ihre professionellen Partner beim Hausbau. Die in bewährter Ziegelmassivbauweise errichteten Niedrigenergiehäuser werden dank des erfahrenen Teams innerhalb kürzester Zeit zum Fixpreis hergestellt.

HWB und fGEE je nach Ausstattung und Kundenwunsch.