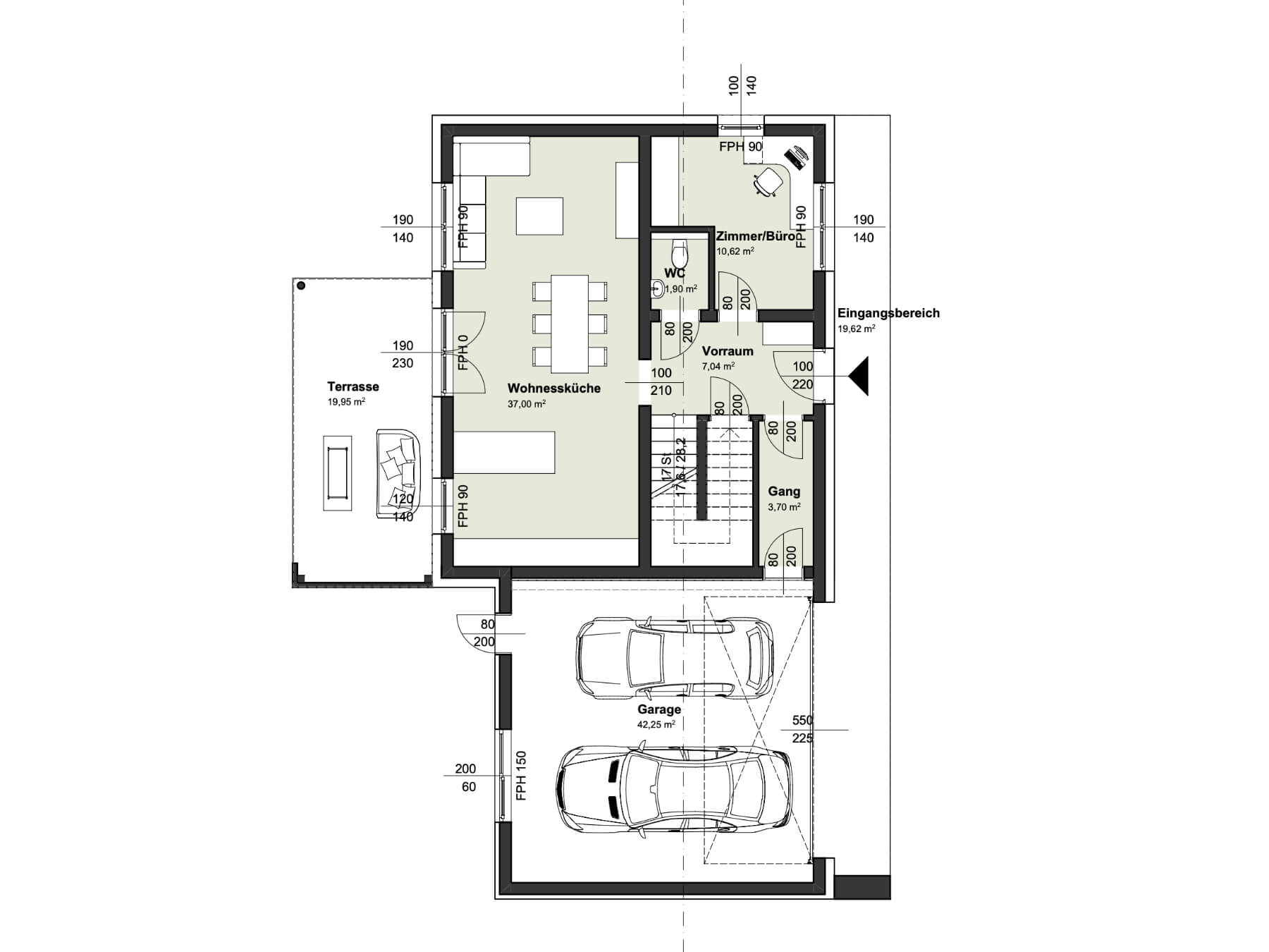
Das modern geplante WP Haus 130 besticht durch eine geräumige Raumaufteilung und eine architektonisch integrierte Doppelgarage mit ca. 42m². Durch einen Verbindungsgang der auch gleichzeitig als private Garderobe dienen kann, gelangt man immer trocken in das Hausinnere. Mit zwei Schlafzimmer im Obergeschoss und einem Büro bzw. Gästezimmer im Erdgeschoss bietet das Typenhaus WP 130 genügend Platz für die gesamte Familie. Der abgeteilte Schrankraum des Elternschlafzimmers bietet zusätzlichen Stauraum.

- Offener-WEK-Bereich 37m²
- 2 KZ ca. 15m²
- 1 EZ -Schrankraum 7m² angeschlossen
- 1 WC EG
- 1 Bad OG (Wanne, Dusche)
- 1 WC OG
- 1 Büro EG
- 1 AR/Technik
- 1 Abstellraum unter Stiege
- Doppelgarage ca. 43m² mit direktem Zugang zum Haus (Gang ca. 4m²)
Informationen
129m2 Wohnnutzfläche
61m2 Keller (Kellergrundriss auf Anfrage)
42m2 Garage
| Flächenaufstellung | ||
| Erdgeschoss: Wohnessküche |
Parkett | 37,00m2 |
| Zimmer/ Büro | Parkett | 10,62m2 |
| Vorraum | Fliesen | 7,04m2 |
| WC | Fliesen | 1,90m2 |
| Gang | Fliesen | 3,70m2 |
| Obergeschoss: Schlafzimmer |
Parkett |
12,24m2 |
| Schrankraum | Parkett | 6,82m2 |
| Zimmer | Parkett | 14,94m2 |
| Zimmer | Parkett | 15,10m2 |
| Vorraum | Parkett | 7,52m2 |
| Bad | Fliesen | 10,93m2 |
| WC | Fliesen | 1,90m2 |
Wir bauen auf österreichische Qualitätsprodukte
- Bodenplatte 25 cm
- Ziegelmassivhaus mit Walmdach
- Außenwände mit 25 cm starken Ziegel + 20cm VWS
- Viessmann Luft-Wasser-Wärmepumpe inkl. Fußbodenheizung (oder gleichwertig)
- Internorm Kunststoff Fenster mit 3-fach Verglasung (oder gleichwertig)
- Betriebsfertige Elektroinstallation inkl. Schalter und Sicherungsverteiler
- Hochwertige sanitäre Rohinstallation
- Vorbereitung für PV-Anlage
- Fensterbänke
- Fixpreisgarantie bis Fertigstellung
SONDERAUSSTATTUNG OPTIONAL MÖGLICH
Keller, Kamin, Carport, Terrassenüberdachung, Pool, Garage, Gartenzaun, Terrassenbelag
IHR TRAUMHAUS AUS ZIEGELMASSIV – FÜR UNSERE EXPERTEN KEIN PROBLEM!
Die Wohnperspektive gemeinsam mit ihrem starken Partner ZÖFA sind Ihre professionellen Partner beim Hausbau. Die in bewährter Ziegelmassivbauweise errichteten Niedrigenergiehäuser werden dank des erfahrenen Teams innerhalb kürzester Zeit zum Fixpreis hergestellt.
HWB und fGEE je nach Ausstattung und Kundenwunsch.




