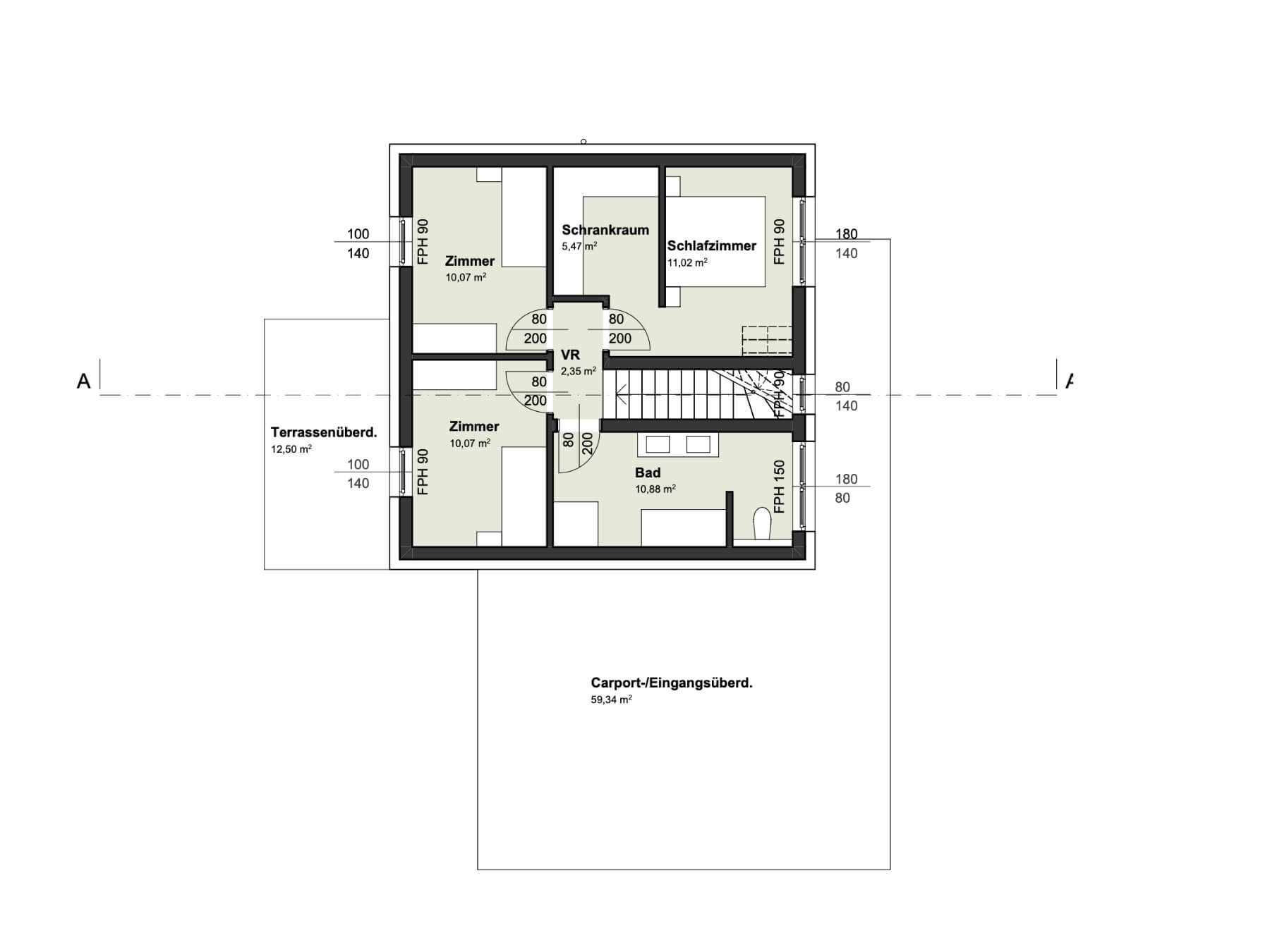
Das WP Haus 100 eignet sich hervorragend für kleine Familien oder Paare in jeder Lebensphase. Dank der optimierten Raumaufteilung, bietet der offene Wohn-Ess-Koch-Bereich viel Platz zum Wohlfühlen. Im Obergeschoss finden sich neben zwei Zimmern, einem Elternschlafzimmer mit separatem Schrankraum ein großzügiges Badezimmer.

- Offener-WE-Bereich, Küche separat ums Eck gesamt ca. 37 m²
- 2 KZ 10 m²
- 1 EZ inkl. Schrankraum 5,5 m² angeschlossen
- 1 WC EG
- 1 Bad OG inkl. WC (Dusche, Wanne)
- 1 AR/ Technik
- 1 Abstellraum unter Stiege
Informationen
99m2 Wohnnutzfläche
49m2 Keller (Kellergrundriss auf Anfrage)
| Flächenaufstellung | ||
| Erdgeschoss: Wohnesszimmer |
Parkett | 28,50m2 |
| Küche | Fliesen | 8,70m2 |
| Vorraum | Fliesen | 5,81m2 |
| WC | Fliesen | 1,73m2 |
| AR/Technik | Fliesen | 4,66m2 |
| Obergeschoss: Schlafzimmer |
Parkett |
11,02m2 |
| Schrankraum | Parkett | 5,47m2 |
| Zimmer | Parkett | 10,07m2 |
| Zimmer | Parkett | 10,07m2 |
| Vorraum | Parkett | 2,35m2 |
| Bad/WC | Fliesen | 10,88m2 |
Wir bauen auf österreichische Qualitätsprodukte
- Bodenplatte 25 cm
- Ziegelmassivhaus mit Walmdach
- Außenwände mit 25 cm starken Ziegel + 20cm VWS
- Viessmann Luft-Wasser-Wärmepumpe inkl. Fußbodenheizung (oder gleichwertig)
- Internorm Kunststoff Fenster mit 3-fach Verglasung (oder gleichwertig)
- Betriebsfertige Elektroinstallation inkl. Schalter und Sicherungsverteiler
- Hochwertige sanitäre Rohinstallation
- Vorbereitung für PV-Anlage
- Fensterbänke
- Fixpreisgarantie bis Fertigstellung
SONDERAUSSTATTUNG OPTIONAL MÖGLICH
Keller, Kamin, Carport, Terrassenüberdachung, Pool, Garage, Gartenzaun, Terrassenbelag
IHR TRAUMHAUS AUS ZIEGELMASSIV – FÜR UNSERE EXPERTEN KEIN PROBLEM!
Die Wohnperspektive gemeinsam mit ihrem starken Partner ZÖFA sind Ihre professionellen Partner beim Hausbau. Die in bewährter Ziegelmassivbauweise errichteten Niedrigenergiehäuser werden dank des erfahrenen Teams innerhalb kürzester Zeit zum Fixpreis hergestellt.
HWB und fGEE je nach Ausstattung und Kundenwunsch.




