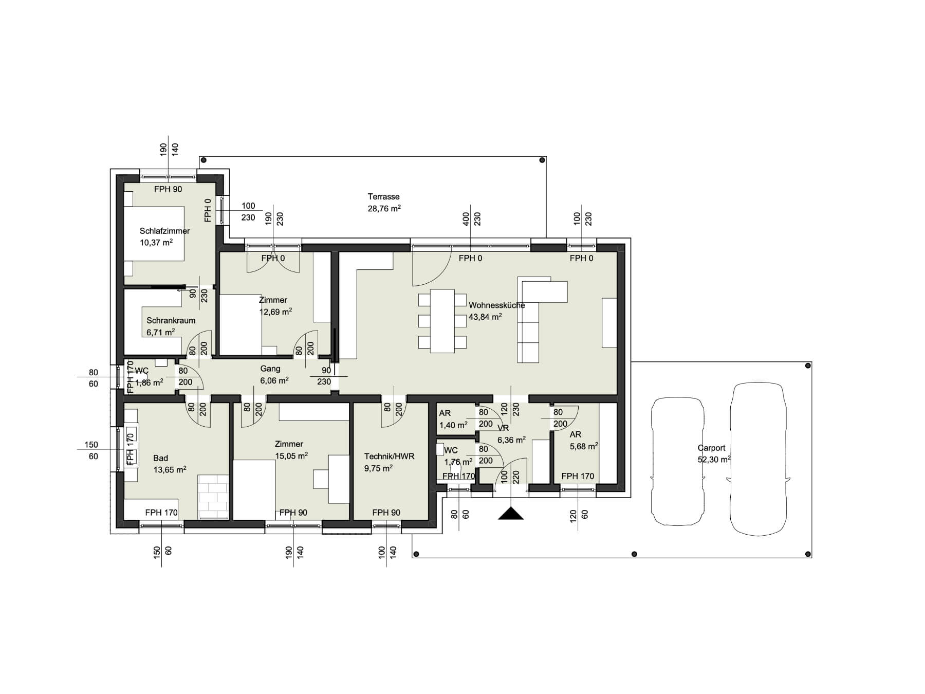
Der Bungalow 135 bietet großzügigen Wohnkomfort auf einer Ebene. Eine optimierte Raumaufteilung schafft genügend Platz für bis zu vierköpfige Familien. Der Schlafbereich ist durch eine Schiebetür getrennt und beinhaltet ein separates WC. Das geräumige Badezimmer sowie der Ankleideraum sind weitere Highlights des Bungalows 135. Ein direkter Terrassenzugang vom Büro und Schlafzimmer sowie eine großzügige Glasfront im Wohn-Ess-Koch-Bereich schaffen ein Gefühl von Exklusivität. Gegen Aufpreis ist eine Terrassenüberdachung sowie ein Doppelcarport erhältlich.

- Offener-WEK-Bereich 44 m²
- Große Glasfront zu Terrasse 4 Meter
- 2 KZ 13 und 15 m²
- 1EZ erreichbar über einen Schrankraum ca. 7 m²
- 1 Bad (Wanne, Dusche)
- 2 WC
- 1 Technik/HWR ca. 10 m²
- 1 Abstellraum ca. 6 m²
- 1 AR/Garderobe 1,4 m²
Wir bauen auf österreichische Qualitätsprodukte
- Bodenplatte 25 cm
- Ziegelmassivhaus mit Walmdach
- Außenwände mit 25 cm starken Ziegel + 20cm VWS
- Viessmann Luft-Wasser-Wärmepumpe inkl. Fußbodenheizung (oder gleichwertig)
- Internorm Kunststoff Fenster mit 3-fach Verglasung (oder gleichwertig)
- Betriebsfertige Elektroinstallation inkl. Schalter und Sicherungsverteiler
- Hochwertige sanitäre Rohinstallation
- Vorbereitung für PV-Anlage
- Fensterbänke
- Fixpreisgarantie bis Fertigstellung
SONDERAUSSTATTUNG OPTIONAL MÖGLICH
Keller, Kamin, Carport, Terrassenüberdachung, Pool, Garage, Gartenzaun, Terrassenbelag
IHR TRAUMHAUS AUS ZIEGELMASSIV – FÜR UNSERE EXPERTEN KEIN PROBLEM!
Die Wohnperspektive gemeinsam mit ihrem starken Partner ZÖFA sind Ihre professionellen Partner beim Hausbau. Die in bewährter Ziegelmassivbauweise errichteten Niedrigenergiehäuser werden dank des erfahrenen Teams innerhalb kürzester Zeit zum Fixpreis hergestellt.
HWB und fGEE je nach Ausstattung und Kundenwunsch.

